19J610-3特种门窗图集(三) 百度网盘
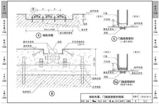
今天为大家带来的是19J610-3图集,基于飞机库大门设计的一款门窗设计图集,包括飞机库的推拉门、尾翼小门、折叠门和侧转门等不同门的平、立和剖面图,可供建筑设计和工程施工、监理等相关人员来使用。

19J610-3图集预览




相关标签
今天为大家带来的是19J610-3图集,基于飞机库大门设计的一款门窗设计图集,包括飞机库的推拉门、尾翼小门、折叠门和侧转门等不同门的平、立和剖面图,可供建筑设计和工程施工、监理等相关人员来使用。





还没有评论,快来抢沙发吧!