09S304卫生设备安装图集 百度网盘
09S304标准图集是09S304卫生设备安装图集的简称,主要内容包括洗涤盆安装图、化验盆安装图、厨房洗涤槽安装和洗脸盆安装图等,使用的设备均按照相关标准,图文实例的介绍方法,非常的详细,从事相关设备按照设计的朋友可参考。

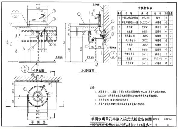
09S304标准图集样张





[hide]
09S304标准图集百度网盘下载地址:
链接:百度网盘链接状态:检测中…https://pan.baidu.com/s/10F4HuYZNgpW********************点击下载下载次数:0
提取码:k6p3
相关标签
还没有评论,快来抢沙发吧!